プラウドタワー練馬
物件概要
-
価格 成約済み 所在地 東京都練馬区 交通 西武池袋・豊島線「練馬」駅 徒歩7分・都営大江戸線「練馬」駅 徒歩8分 面積 壁芯77.37m2 築年月 2009年1月 - 駅10分以内
おすすめポイント
- point -
- point -
- 約37㎡のバルコニー付
- LDK約17.3帖
- 納戸とWIC付
- 富士山を望める眺望※天候によります
物件詳細
| 価格 | 成約済み |
|---|---|
| 所在地 | 東京都練馬区 |
| 交通 | 西武池袋・豊島線「練馬」駅徒歩7分・都営大江戸線「練馬」駅徒歩8分 |
| 用途地域 | 商業地域 |
| 種類 | 居宅 |
| 土地権利 | 所有権 |
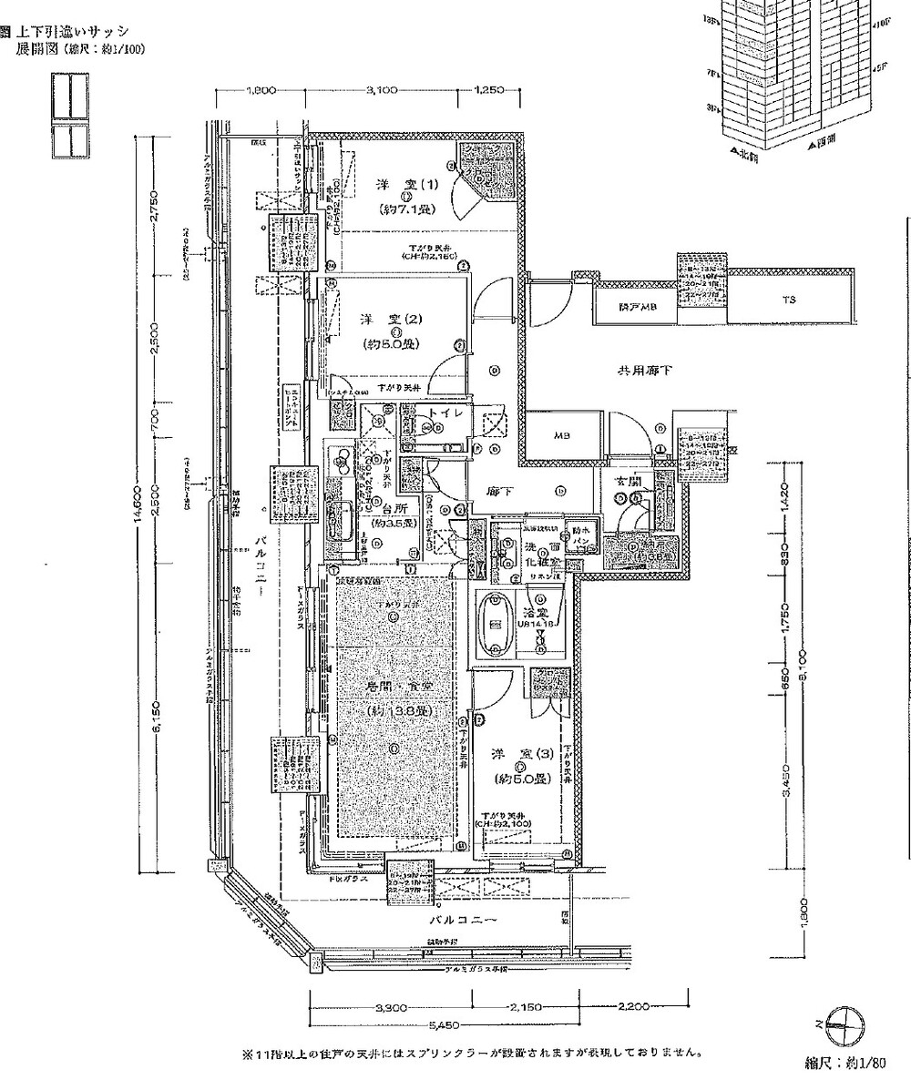
| 住戸専有面積(m2) | 77.37m2(壁芯) |
| バルコニー面積(m2) | 37.44m2 |
| 建物階数 | 地上29階・地下1階 |
| 建物構造 | 鉄筋コンクリート造 |
| 築年月 | 2009年1月 |
| 部屋階数(階) | 24階 |
| 総戸数 | 257戸 |
| 間取り | 3LDK+N+W |
| 管理費 | 15,980円(月額) |
| 修繕積立金 | 25,305円(月額) |
| 現況 | 居住中 |
| 引渡日 | 相談 |
| 取引態様 | 専任媒介 |
| 周辺環境 |
|
| 土地(地目) | 宅地 |
| 都市計画区域 | 市街化区域 |
| 建ぺい率(%) | 80% |
| 容積率(%) | 500% |
| 仲介業者 | フジミ不動産販売株式会社 |
※すべて税込価格となります。
