ガーラ・ヒルズ新宿/3階部分
物件概要
-
価格 8,880万円 所在地 東京都新宿区北新宿3-10-6 交通 JR総武線「大久保」駅徒歩7分他 面積 専有面積50.48m2 築年月 2013年11月築 - 駅10分以内
- 2駅利用可
おすすめポイント
- point -
- point -
- JR総武線「大久保」駅徒歩7分の好立地
- 丸ノ内線・西武新宿線・都営大江戸線の利用も可能です
- 高台に位置する低層マンション、南西角住戸、ペット飼育可能
物件詳細
| 価格 | 8,880万円 |
|---|---|
| 所在地 | 東京都新宿区北新宿3-10-6 |
| 交通 | JR総武線「大久保」駅徒歩7分 JR山手線「新大久保」駅徒歩12分 |
| 用途地域 | 近隣商業地域・第一種中高層住居専用地域 |
| 種類 | 居宅 |
| 土地権利 | 所有権 |
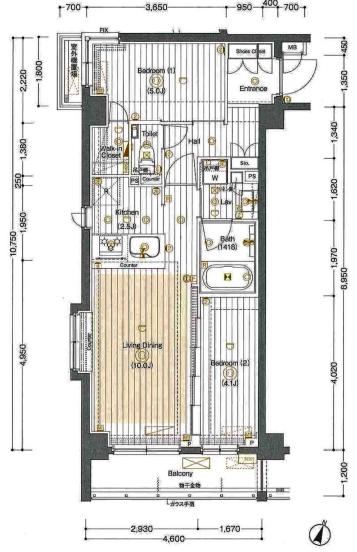
| 住戸専有面積(m2) | 50.48m2(壁芯) |
| バルコニー面積(m2) | 5.52m2 |
| 建物階数 | 地下1階付地上5階 |
| 建物構造 | 鉄筋コンクリート造陸屋根 |
| 築年月 | 2013年11月 |
| 部屋階数(階) | 3階 |
| 総戸数 | 130戸 |
| 間取り | 2LDK |
| 管理費 | 12,520円(月額) |
| 修繕積立金 | 4,560円(月額) |
| その他 | 825円(月額) |
| 現況 | 空室予定 |
| 引渡日 | 令和8年6月以降 |
| 取引態様 | 媒介 |
| 周辺環境 |
|
| 土地(地目) | 宅地 |
| 都市計画区域 | 市街化区域 |
| 管理形態 | 全部委託(日勤) |
| 設備 | 電気・都市ガス・上下水道 |
| 備考 | ※内覧は空室後(6月以降)になります ・エレベーター/オートロック/宅配ボックス有 ・ペット飼育可(犬・猫)体高40cm、10kg、2匹まで ・バイク置場有(確認中 円/年) ・駐車場有(確認中 円/年) |
| 仲介業者 | フジミ不動産販売株式会社 |
※すべて税込価格となります。
