杉並区高円寺南3丁目戸建

物件概要

  • 価格8,680万円
    所在地東京都杉並区高円寺南3丁目
    交通JR中央・総武線「高円寺」駅徒歩6分
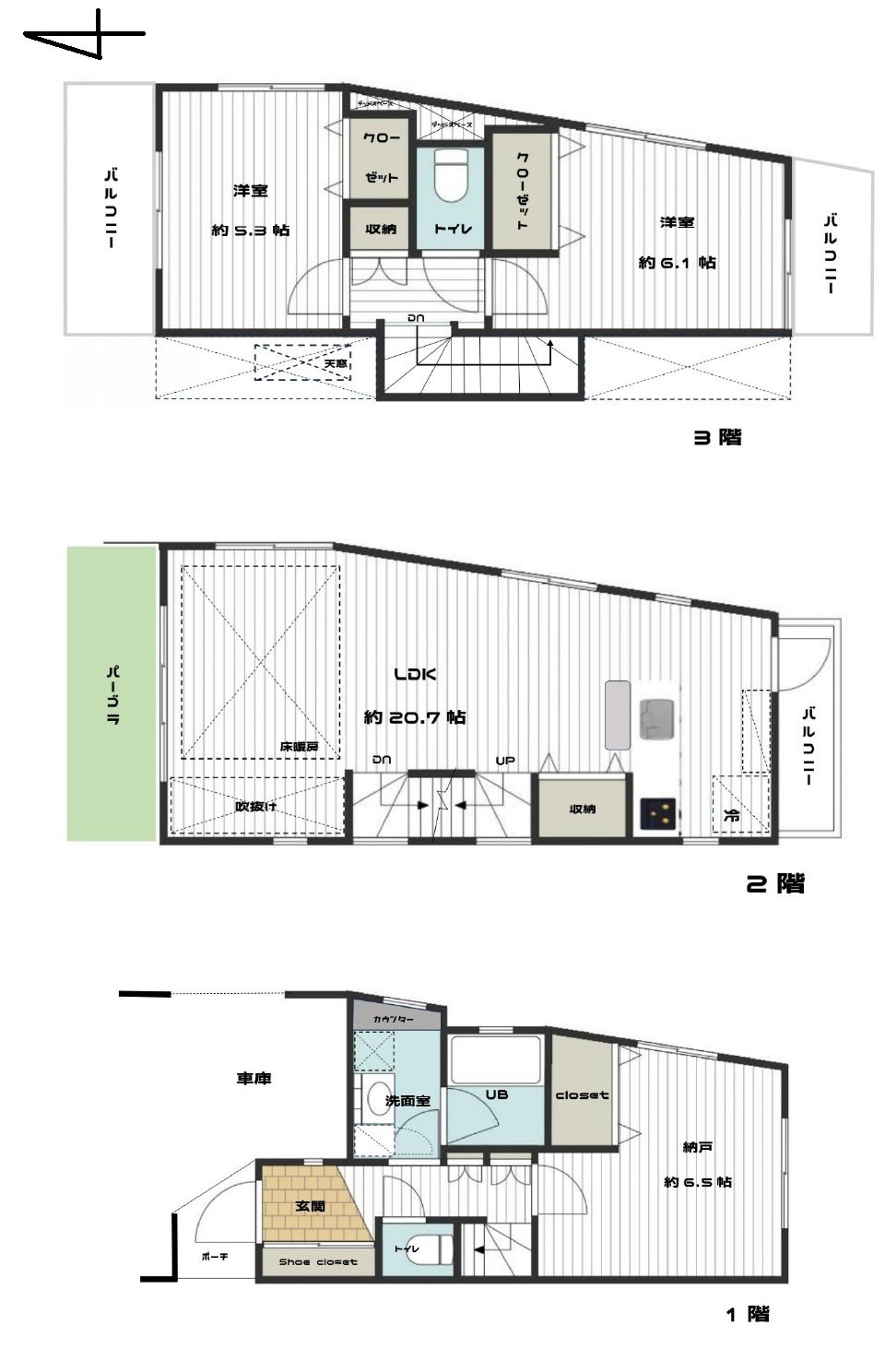
    面積建物面積100.91m2
    築年月2013年5月
    • 駅10分以内
    • 建物30坪以上
    • LDK16
おすすめポイント
- point -
  • JR中央・総武線「高円寺」駅徒歩6分のLDK約20.7帖の大型3LDK
  • 室内大変お綺麗でそのままお住まいいただけます

物件詳細

価格(税込) 8,680万円
所在地 東京都杉並区高円寺南3丁目
交通 JR中央・総武線「高円寺」駅徒歩6分
東京メトロ丸ノ内線「新高円寺」駅徒歩9分
用途地域 第一種低層住居専用地域
土地権利 所有権
建物面積(m2 1F:33.97m2 2F:37.69m2 3F:29.25m2 計:100.91m2(30.52坪)
建物構造 木造3階建
築年月 2013年5月
間取り 3LDK
駐車場
現況 居住中
引渡日 相談
設備 上下水道、都市ガス、東京電力
周辺環境
  • 西友高円寺店約230m
  • ファミリーマート高円寺パル商店街店約1000m
  • 杉並区立高円寺小学校・中学校約1000m
  • 高円寺南三郵便局約106m
  • 杉並幼稚園約501m
土地地目 宅地
土地面積 63.32m2+6.92m2(セットバック面積持分2分の1)
都市計画 市街化区域
建ぺい率(%) 60%
容積率(%) 150%
接道 北側・約3.4m・公道
法制限 高度地区・準防火地域等
備考司法書士は売主指定
仲介業者 フジミ不動産販売株式会社

※すべて税込価格となります。

メニュー